Contact:Collection Management and Circulation Services Division|  (886)6-2757575 Ext. 65752、65756| 
KnowLEDGE Learning Commons|  (886)6-2757575 Ext. 34906
|
Functions and purposes |
|
The learning commons of the NCKU Library (named it “KnowLEDGE”) is a “new place for learning”, located on the first and second floor of the Dormitory No.3 of the University’s Ching-Yeh Campus(MAP). As a campus hub for student-centered learning activities, this venue is a shared or common space in which NCKU students, teachers and others can come together to interact, and participate in various kinds of learning activities held there. The KnowLEDGE, as a new venue for knowledge construction, its space functions are listed in the following:
- Service for NCKU faculty, students and staff to encourage them to engage in a dialogue, discussion and creative learning.
- Service for campus activities approved by NCKU Library to build a cross-over platform for interdisciplinary learning.
- Respond the students’ needs for self-study, to set up a quiet reading room on 2nd floor.
|
Service for |
|
The KnowLEDGE is open to NCKU faculty, students and staff only. It is not open to the public.
|
Open Hours |
|
Open 24 hours (Closure for cleaning, facility maintenance, national holiday or other factors will be announced in advance.)
|
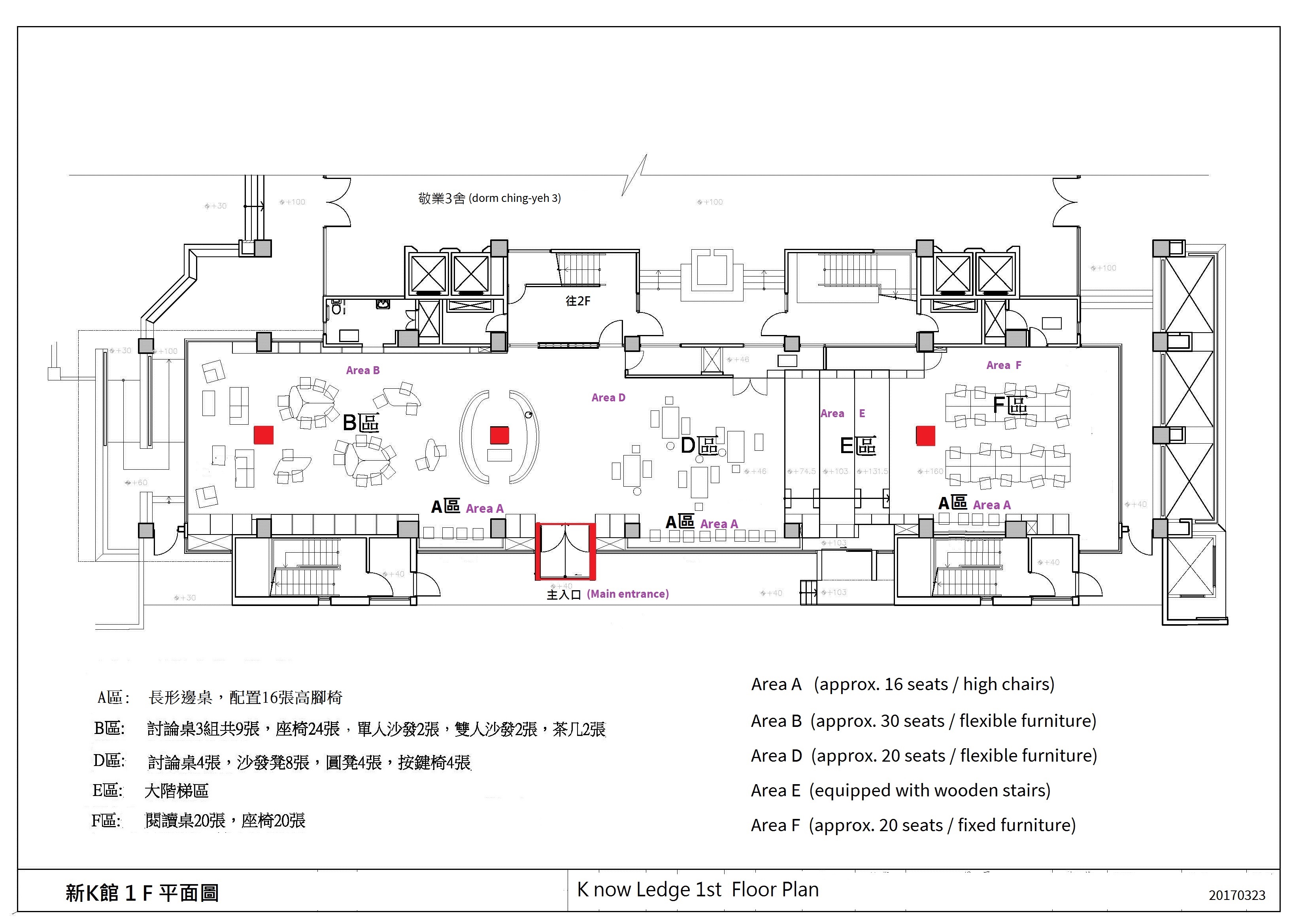
Interior space and equipment |
- The discussion and interaction area on 1st floor
- The discussion and interaction area on 1st floor could hold up to 100 persons for individual or group study, discussion and campus activities approved by NCKU Library. A variety of spaces are provided in the Commons (Floor plan):
- Area A (Long tables area) equipped with 16 high chairs.
- Area B (Discussion area B) could hold up to 30 persons, equipped with combination tables, chairs, and couch. Surfaces of wall cabinets are whiteboards.
- Area D (Discussion area D) could hold up to 20 persons, equipped with tables, benches and low stools. Surfaces of wall cabinets are whiteboards.
- Area E (Wooden stairs) allowed to sit on the stairs and be used together with Area D for activities.
- Area F (Wooden stages) equipped with 20 tables and seats.
- Provide projectors, wireless microphones and 150-inch projection screen (W305cm x H334cm) if you have a reservation.
- The quiet reading room on 2nd floor
The quiet reading room equipped with 80 seats for self-study. The users in this room will be asked to keep quiet.
- The rest area on 2nd floor
The rest area is next to the quiet reading room, the public facilities such as toilets and drinking fountains are located here. In addition, round bar height tables, high chairs and colorful movable stools are provided for taking a break.
|
Access and activities application guide |
|
|
Important notice |
- Please do not bring food, alcoholic drinks, prohibited items, and pets inside.
- While interactions and group discussions are encouraged, please keep the voice down.
- Respect other people’s user rights, please do not occupy seats. Those who fail to improve after persuasion will be given one violation point as per “National Cheng Kung University Library Rules for Reader Violations“.
- Leaving seat for more than 30 minutes which is to regard as seat occupation, will be given one violation point as per “National Cheng Kung University Library Rules for Reader Violations“. In addition, the personal belongings left on the empty seat will be removed and collected to service desk on 1st floor by the Library staffs or student assistants without any safekeeping responsibility.
- Please safely secure your own personal items, belongings, books, and equipment…etc. Our venue does not bear any responsibility for any loss, and will proceed with daily clearing after closing.
- In order to maintain all users’ rights, we shall check NCKU ID card at any time, and all users shall comply with the request. For those who do not hold ID card, use another person’s ID card, use forged ID card or alteration of ID card, must leave immediately once discovered, and shall be penalized according to “National Cheng Kung University Library Rules for Reader Violations”.
- Please do not park your motor or bicycle at parking lot for Dormitory No. 3, Ching-Yeh Campus.
|
Service Policy |
|
|
Venue overview and related information |
- Location: 1st & 2nd Floor, Dormitory No. 3, Ching-Yeh Campus, please click MAP.
- Floor plan(1F、2F)
- Brochure
- Photos
 |
 |
 |
 |
| Gate |
Discussion area B |
Discussion area D/Wooden stairs |
Long tables area |
| |
 |
 |
 |
 |
| Wooden stages area |
Wooden stairs area |
The quiet reading room on 2nd floor |
The rest area on 2nd floor |
| |
|